concursos
concursos
Edifício Sede da Procuradoria Regional da República da 4ª Região
2004 | Porto Alegre, RS
industrial
expografia
urbanismo
patrimônio histórico
serviços
institucional
habitação
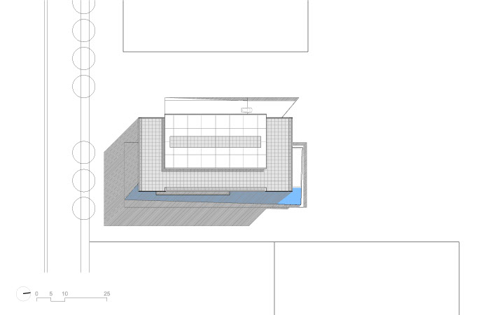
PRR4 - Implantação
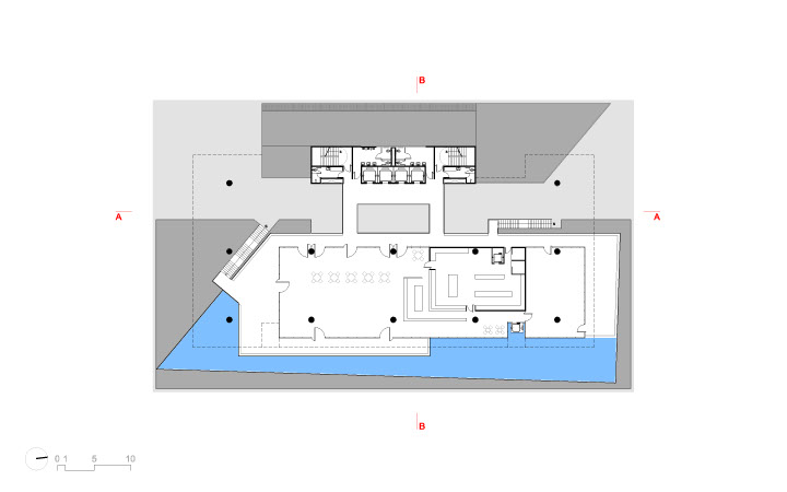
PRR4 - Planta subsolo
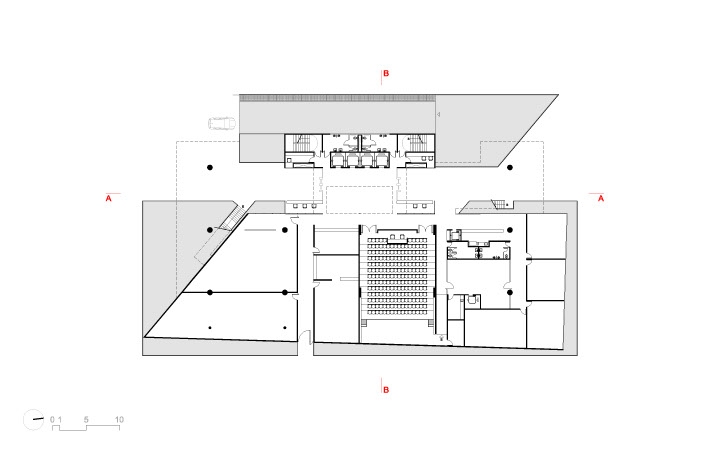
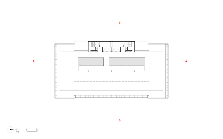
PRR4 - Planta térreo
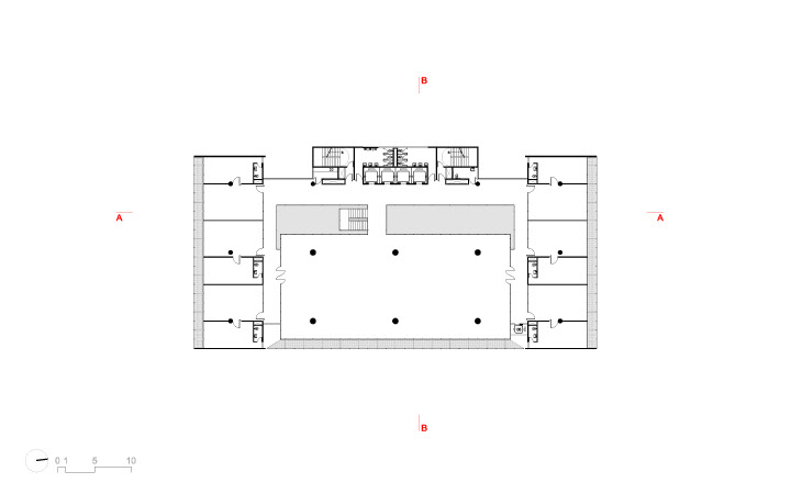
PRR4 - Planta pavimento tipo
PRR4 - Planta terraço técnico
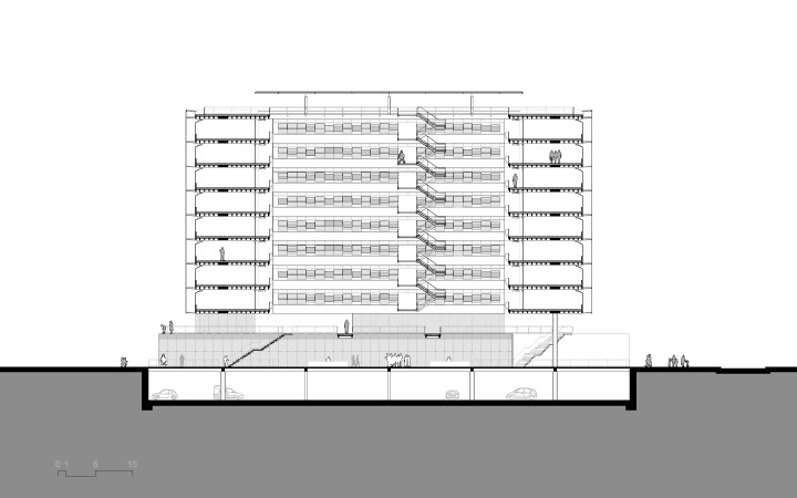
PRR4 - Corte AA
PRR4 - Corte BB
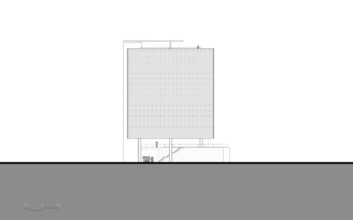
PRR4 - Fachada Sul
PRR4 - Fachada Leste
Rua São Vicente de Paulo 95 cj 124 | Santa Cecília | CEP 01229-010 | São Paulo SP Brasil | epaulistano@epaulistano.com.br