patrimônio histórico
patrimônio histórico
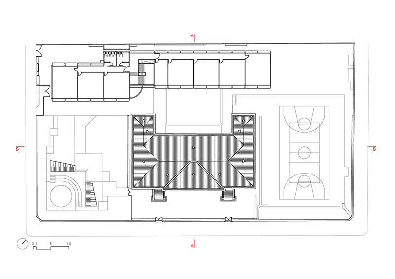
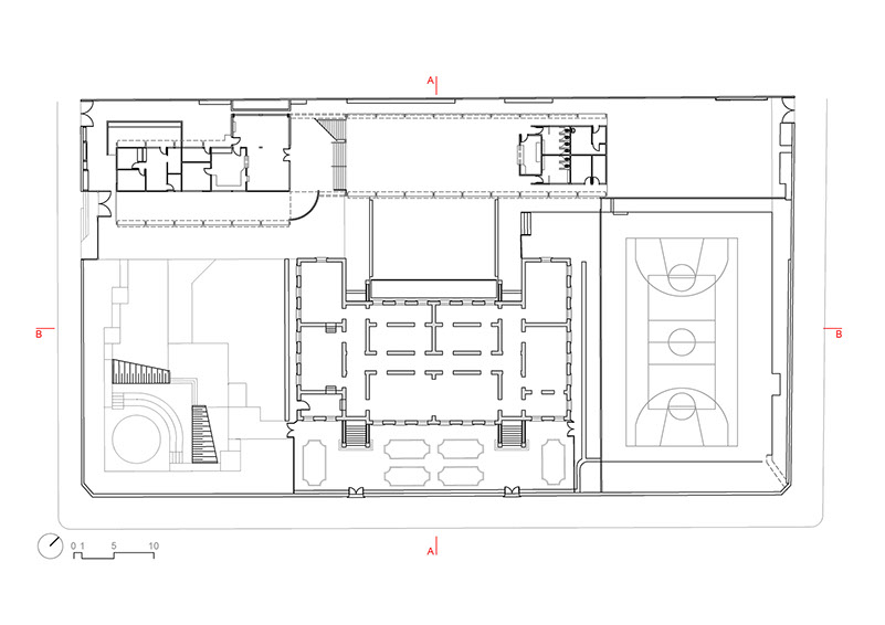
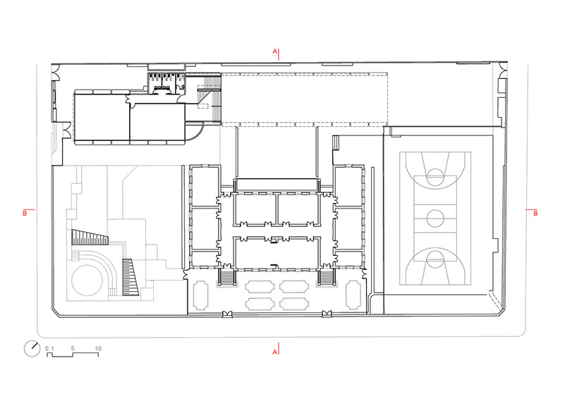
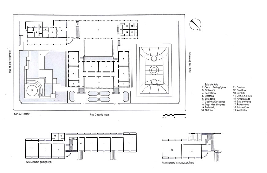
Escola Estadual José Inocêncio da Costa | 1992 | Matão, SP
industrial
expografia
concursos
urbanismo
serviços
institucional
habitação
Rua São Vicente de Paulo 95 cj 124 | Santa Cecília | CEP 01229-010 | São Paulo SP Brasil | epaulistano@epaulistano.com.br