serviços

serviços

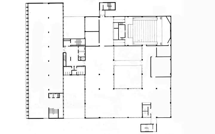
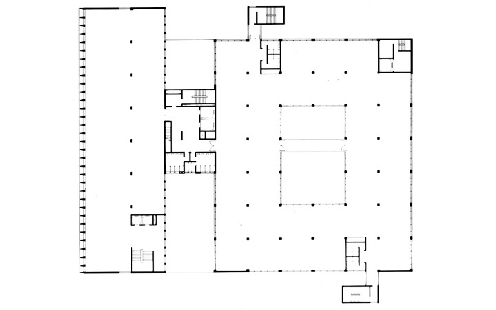
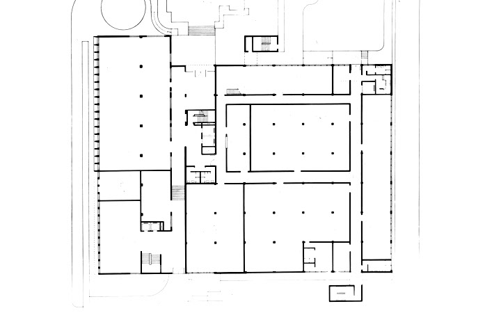
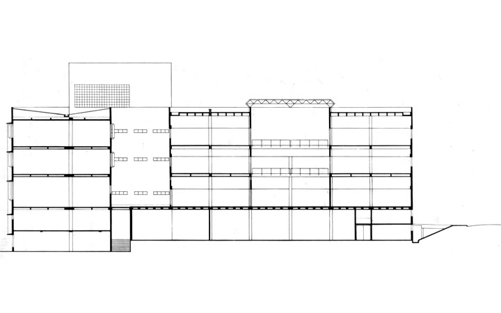
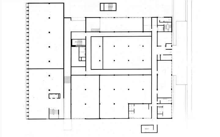
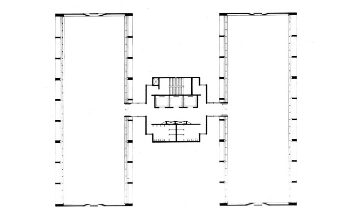
Plano Piloto do Centro Administrativo Ciba-Geigy

1989 |Santo Amaro, São Paulo, SP

industrial

expografia

concursos

urbanismo

patrimônio histórico

institucional

habitação

Rua São Vicente de Paulo 95 cj 124 | Santa Cecília | CEP 01229-010 | São Paulo SP Brasil | epaulistano@epaulistano.com.br