patrimônio histórico

industrial

expografia

concursos

urbanismo

serviços

institucional

habitação

patrimônio histórico

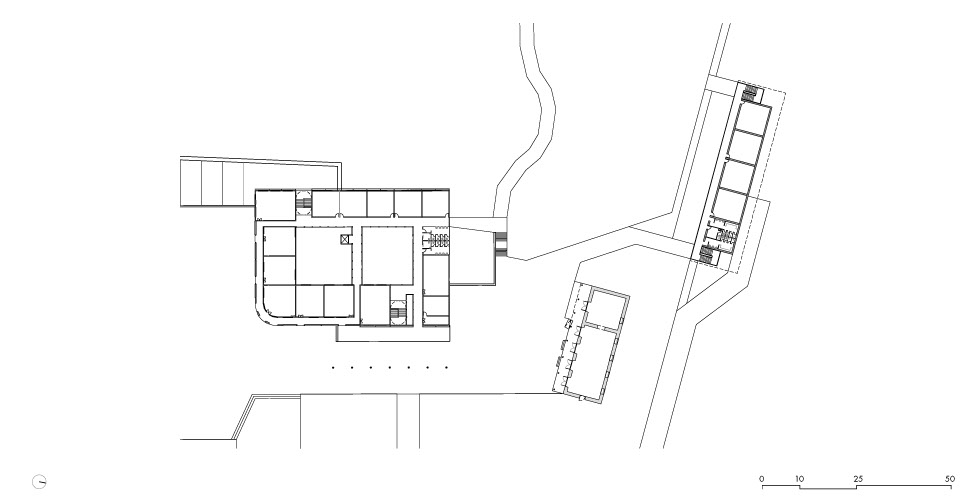
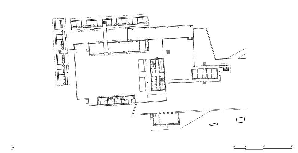
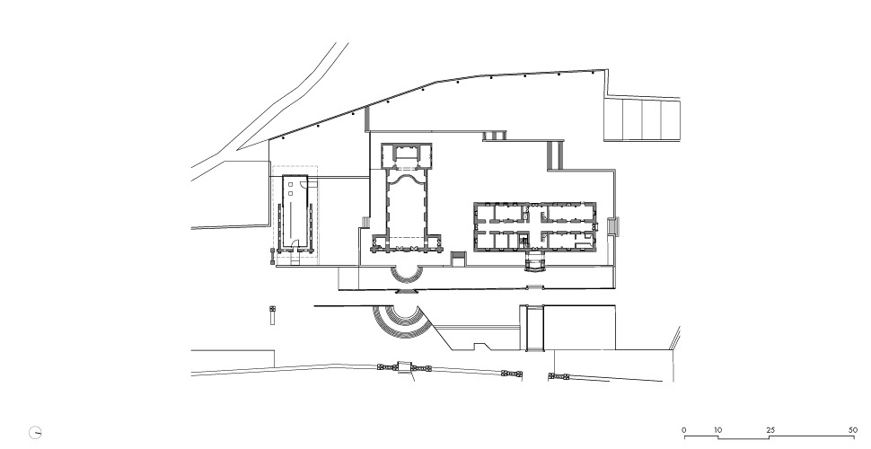
Missão Jesuítica de São José de Boroma

2012 | Boroma, Tete, Moçambique

Rua São Vicente de Paulo 95 cj 124 | Santa Cecília | CEP 01229-010 | São Paulo SP Brasil | epaulistano@epaulistano.com.br